Work
Contact
Work
Contact
Arkitekt Jens Varming
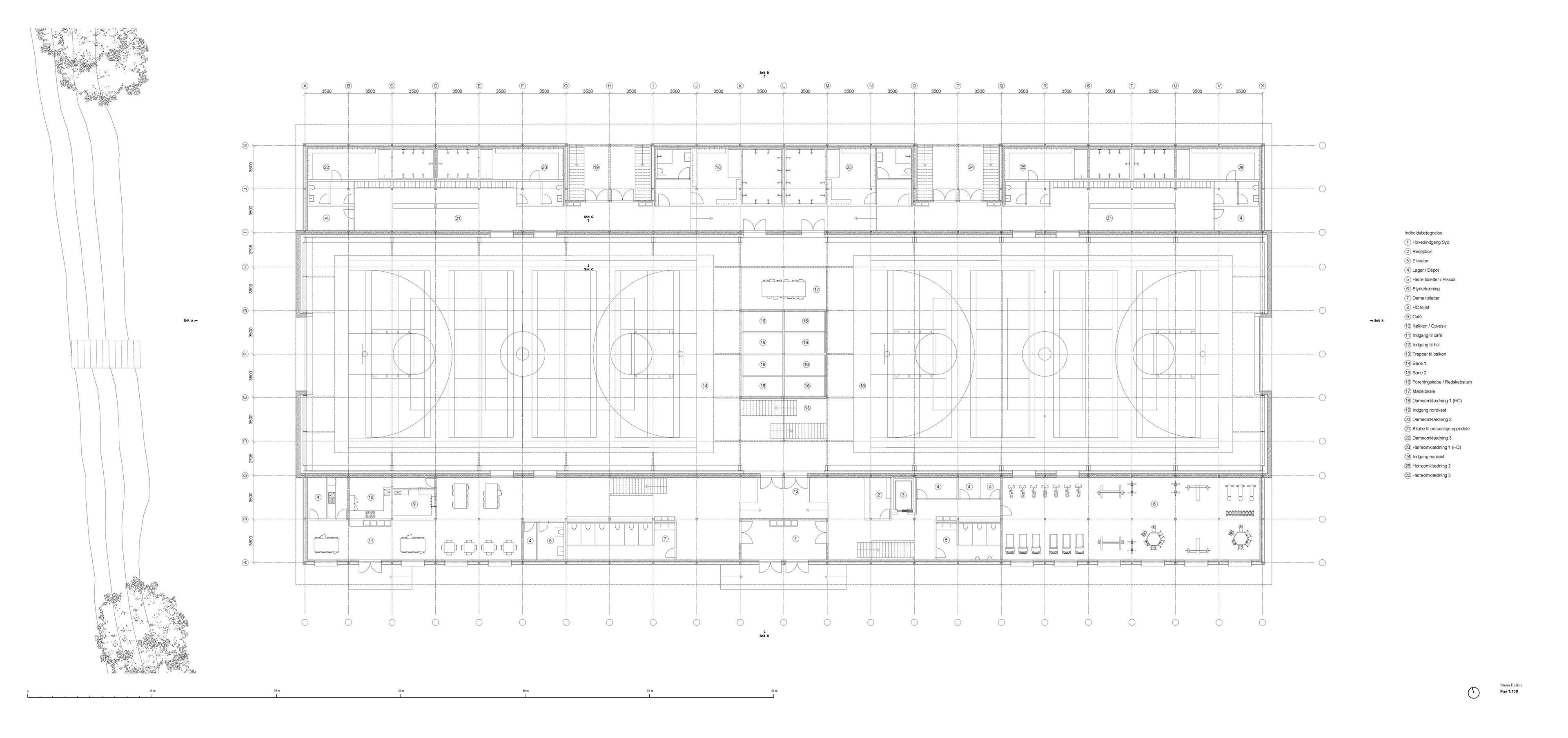
Stena Hallen
Afgangsprojekt
You may also like
Dæmpegaard
2021
Østerbrogade 146
2022
Work in proces...
2025
↑
Back to Top