work
contact
work
contact
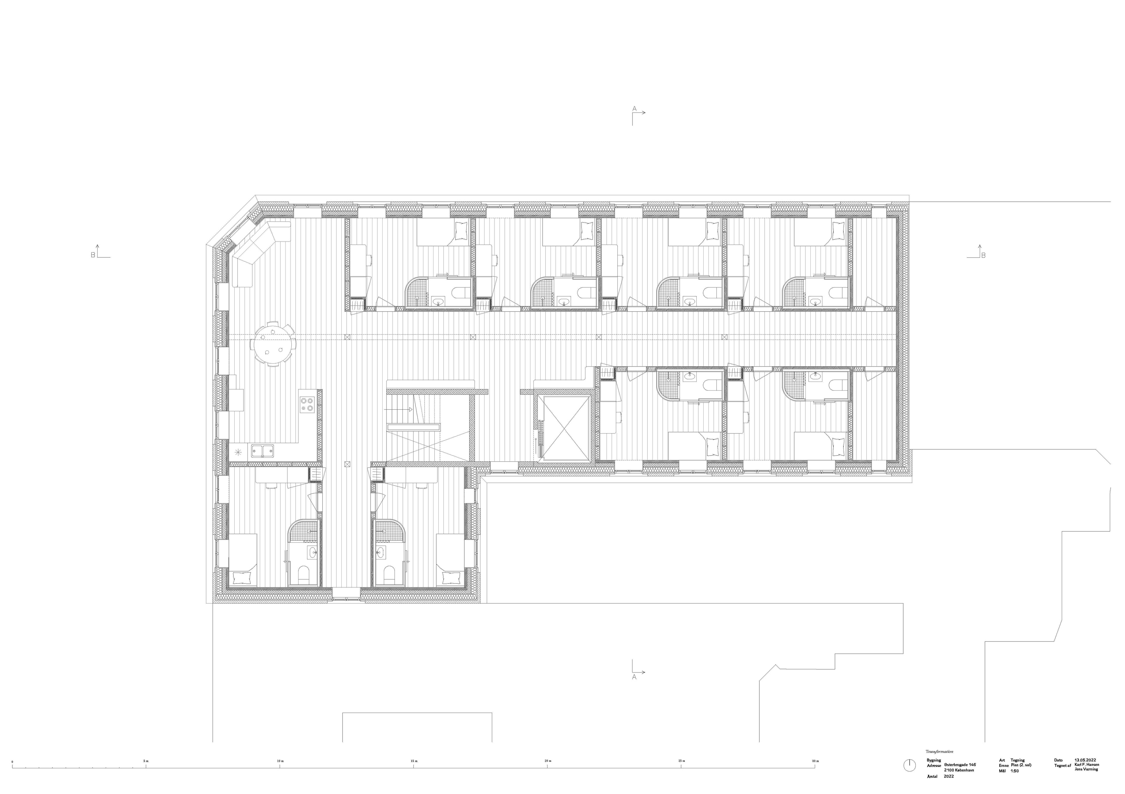
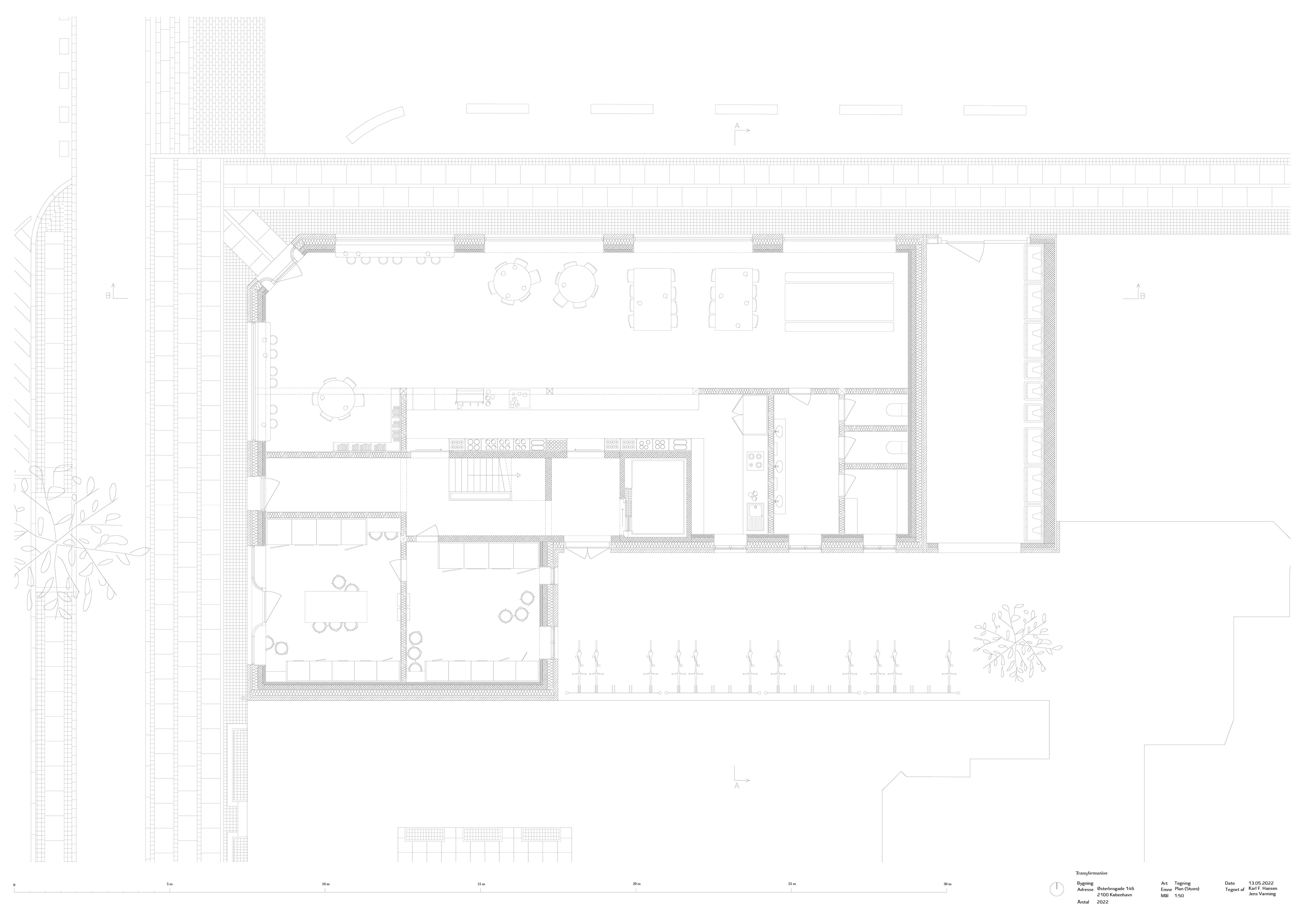
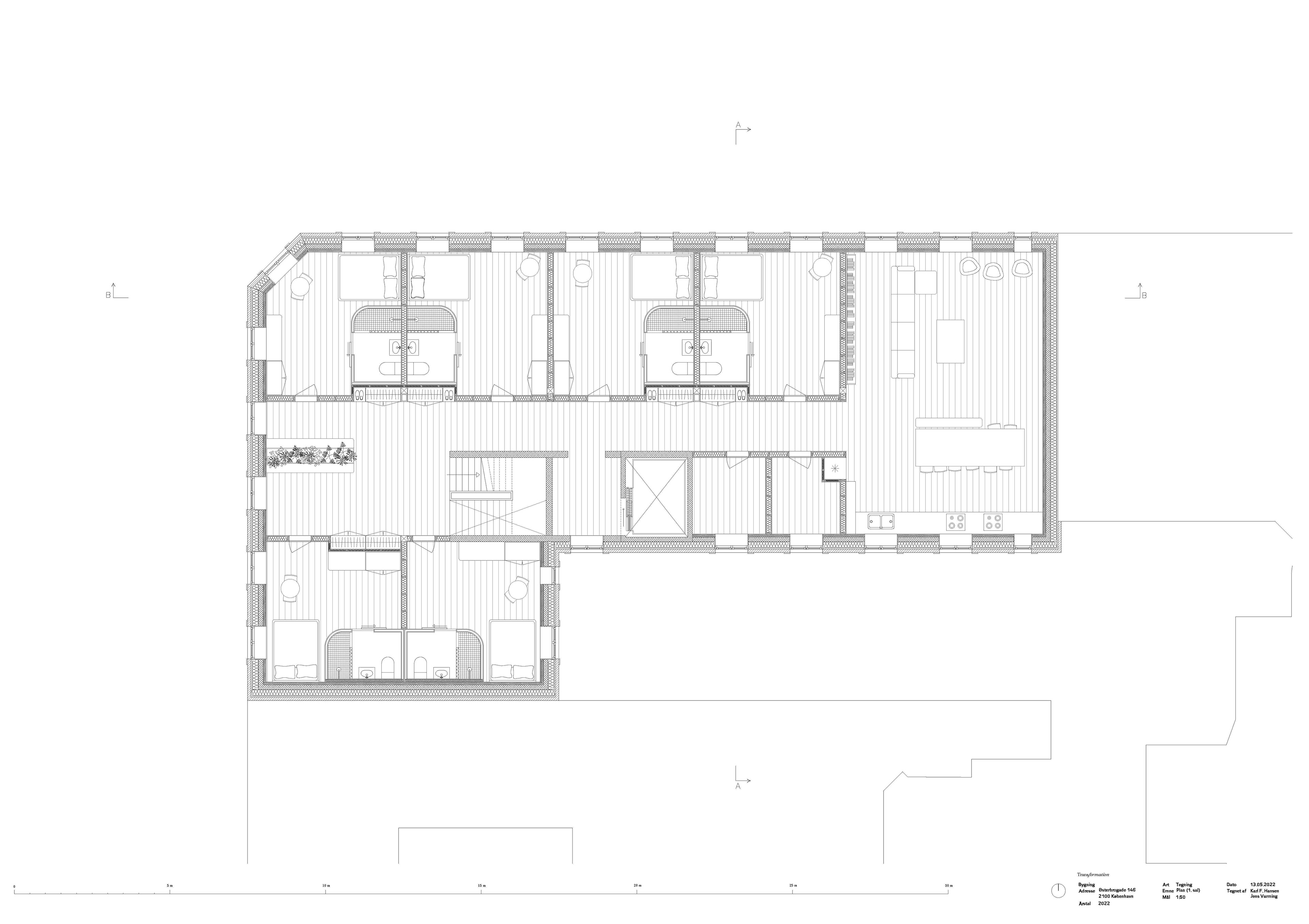
ARKITEKT JENS VARMING
Østerbrogade 146
You may also like
W.I.P
2025
Stena Hallen
2024
Dæmpegaard
2021
↑
Back to Top